FRP-DS-199156 | Dom Sprzedaż
Opis
DOM WOLNOSTOJĄCY W STANIE SUROWYM OTWARTYM- BYSZKI (GM. UJŚCIE)
Istnieje możliwość doprowadzenie domu do stanu deweloperskiego!
Przedmiotem oferty jest dom wolnostojący w stanie surowym otwartym.
Nieruchomość zlokalizowana jest w malowniczo położonej okolicy w m. Byszki (gm. Ujście)
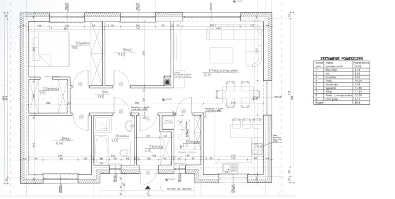
Budynek o pow. użytkowej 89,6m2 usytuowany na działce gruntu (własność) o pow. 919m2.
Budynek mieszkalny jednorodzinny parterowy z dachem dwuspadowym pokrytym dachówką betonową płaską. Wybudowany w technologi tradycyjnej z bloczków betonowych YTONG.
Atuty nieruchomości:
Budynek składa się z :
Działka w całości ogrodzona siatką
Media: prąd, woda i kanalizacja w drodze
Nieruchomość świetnie zlokalizowana w sąsiedztwie terenów zielonych (pola, lasy) oraz świetnie skomunikowana z Piłą (6km) oraz Ujściem (4km).
Istnieje możliwość doprowadzenie domu do stanu deweloperskiego!
Przedmiotem oferty jest dom wolnostojący w stanie surowym otwartym.
Nieruchomość zlokalizowana jest w malowniczo położonej okolicy w m. Byszki (gm. Ujście)
Budynek o pow. użytkowej 89,6m2 usytuowany na działce gruntu (własność) o pow. 919m2.
Budynek mieszkalny jednorodzinny parterowy z dachem dwuspadowym pokrytym dachówką betonową płaską. Wybudowany w technologi tradycyjnej z bloczków betonowych YTONG.
Atuty nieruchomości:
- dostępność mediów: prąd, woda, kanalizacja,
- dojazd z drogi asfaltowej,
- wykonana obróbka dachu + rynny,
- świetny układ pomieszczeń.
Budynek składa się z :
- Salon z aneksem kuchennym o pow. 32,26m2
- Pokój o pow. 11,85m2
- Pokój o pow. 11,24m2
- pokój o pow. 10,04m2
- Łazienka o pow. 5,41m2
- Pomieszczenie gospodarcze o pow. 4,11m2
- Garderoba o pow. 3,59m2
- Hol o pow. 6,98m2
- Wiatrołap o pow. 1,19m2
Działka w całości ogrodzona siatką
Media: prąd, woda i kanalizacja w drodze
Nieruchomość świetnie zlokalizowana w sąsiedztwie terenów zielonych (pola, lasy) oraz świetnie skomunikowana z Piłą (6km) oraz Ujściem (4km).
Informacje ogólne
Status
Aktualna
Lokalizacja
wielkopolskie, pilski, Ujście (gw), Byszki
Rodzaj budynku
Pow. całkowita [m2]
89.60
Ilość pokoi
4
Cena
389 000 zł
Data wprowadzenia
2026-03-15
Data aktualizacji
2026-03-15
Informacje o nieruchomości
Ilość pięter w budynku
1
Zagospodarowanie działki
Niezagospodarowana
Ukształtowanie działki
płaska
Kształt działki
prostokąt
Ogrodzenie działki
siatka
Rodzaj domu
wolnostojący
Pokrycie dachu
dachówka betonowa
Powierzchnia użytkowa
89,6000
Stan budynku
do wykończenia
Rok budowy
2024
Gaz
brak
Woda
w drodze
Kanalizacja
miejska
Prąd
w ulicy
Dojazd
ASFALTOWA
Pomieszczenia
Ilość pokoi
4
Wysokość pomieszczeń
0
Mapa
Oddział
Oddział
ESC sp. z o.o.
Adres
ul. Bydgoska 153, 64-920 Piła
Telefon
67 353-30-30
FAX
67 353-30-30
Strona WWW
www.esc.pila.pl
E-mail

















