FRP-GS-198550 | Działka Sprzedaż
Opis
DZIAŁKA NA SPRZEDAŻ-
ZABUDOWA MIESZKANIOWA JEDNORODZINNA
ZAWADA, GM. SZYDŁOWO
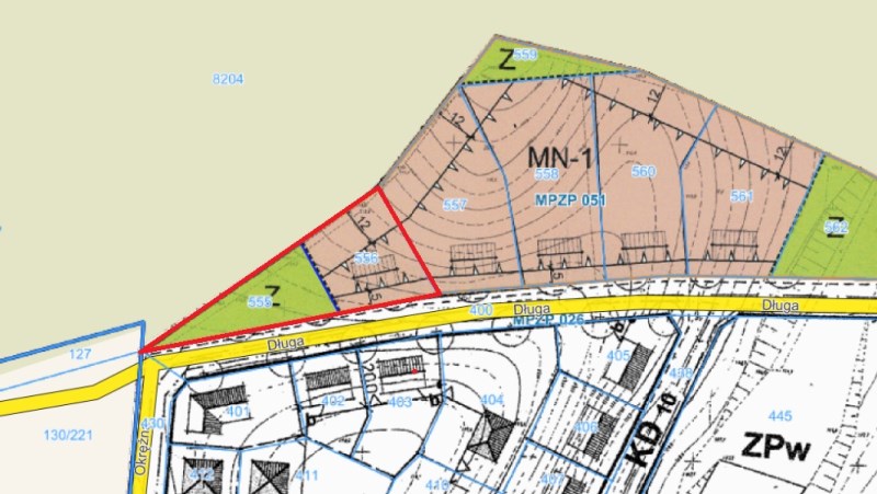
Na sprzedaż dwie działki gruntu (własność) o powierzchni łącznej 1553 m2 zlokalizowana przy ścianie lasu w bardzo spokojnej części Zawady.
Zgodnie z miejscowym planem zagospodarowania przestrzennego dla działki nr 556 ustala się:
Budowa budynku mieszkalnego jednorodzinnego:
- wysokość- jedna kondygnacja nadziemna z dopuszczeniem użytkowego wykorzystania poddasza jako drugiej kondygnacji nadziemnej lecz nie większa niż 10,50m od poziomu terenu,
- na budynku obowiązuje dach skośny, co najmniej dwuspadowy o nachyleniu głównych połaci dachu min 25 stopni,
- minimalna długość ściany frontowej- 8,00m
- wysokość- jedna kondygnacja nadziemna lecz nie większa niż 7,00m od poziomu terenu,
- geometria dachów dowolna
Uzbrojenie: (prąd, woda, gaz)- w drodze przy działce
Dobra lokalizacja, w odległości 5 km od granic miasta Piły.
Nieruchomość znajduje się w sąsiedztwie działek niezabudowanych w dynamicznie rozbudowującej się części Nowej Zawady.
ZAPRASZAM DO KONTAKTU W CELU UMÓWIENIA PREZENTACJI NIERUCHOMOŚCI!
Informacje ogólne
Status
Aktualna
Lokalizacja
wielkopolskie, pilski, Szydłowo (gw), Zawada
Rodzaj budynku
Pow. całkowita [m2]
1553.00
Cena
279 000 zł
Data wprowadzenia
2025-09-04
Data aktualizacji
2025-09-08
Informacje o nieruchomości
Przeznaczenie działki
budowlana
Zagospodarowanie działki
Niezagospodarowana
Kształt działki
prostokąt
Ogrodzenie działki
brak
Gaz
w drodze dojazdowej
Woda
w ulicy
Prąd
w ulicy
Dojazd
droga gruntowa
Ilość pokoi
0
Wysokość pomieszczeń
0
Mapa
Oddział
Oddział
ESC sp. z o.o.
Adres
ul. Bydgoska 153, 64-920 Piła
Telefon
67 353-30-30
FAX
67 353-30-30
Strona WWW
www.esc.pila.pl
E-mail










