FRP-GS-198884 | Działka Sprzedaż
Opis
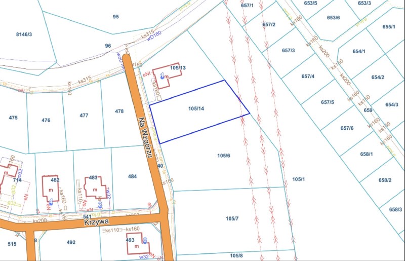
NA SPRZEDAŻ DZIAŁKA O POW. 1501m2
DOBRZYCA, GM. SZYDŁOWO
Tytułem oferty jest atrakcyjnie położona działka z wydanymi warunkami zabudowy.
W miejscowości restauracja, lasy, droga rowerowa do miasta Piły.
Dojazd drogą asfaltową, ostatnie 40 metrów droga utwardzaną.
Odległość od Drogi Krajowej 11 - 600 m. Odległość od centrum Piły - 10 km.
Działka w kształcie prostokąta.
Warunki wydane na budowę domu mieszkalnego wraz z pomieszczeniem gospodarczo- garażowym.
Uzbrojenie: prąd, kanalizacja, woda w ulicy.
ZAPRASZAMY NA PREZENTACJĘ!!!
Opis oferty zawarty na stronie internetowej sporządzany jest na podstawie oględzin nieruchomości oraz informacji uzyskanych od właściciela, może podlegać aktualizacji i nie stanowi oferty określonej w art. 66 i następnych K.C
DOBRZYCA, GM. SZYDŁOWO
Tytułem oferty jest atrakcyjnie położona działka z wydanymi warunkami zabudowy.
W miejscowości restauracja, lasy, droga rowerowa do miasta Piły.
Dojazd drogą asfaltową, ostatnie 40 metrów droga utwardzaną.
Odległość od Drogi Krajowej 11 - 600 m. Odległość od centrum Piły - 10 km.
Działka w kształcie prostokąta.
Warunki wydane na budowę domu mieszkalnego wraz z pomieszczeniem gospodarczo- garażowym.
Uzbrojenie: prąd, kanalizacja, woda w ulicy.
ZAPRASZAMY NA PREZENTACJĘ!!!
Opis oferty zawarty na stronie internetowej sporządzany jest na podstawie oględzin nieruchomości oraz informacji uzyskanych od właściciela, może podlegać aktualizacji i nie stanowi oferty określonej w art. 66 i następnych K.C
Informacje ogólne
Status
Aktualna
Lokalizacja
wielkopolskie, pilski, Szydłowo (gw), Dobrzyca
Rodzaj budynku
Pow. całkowita [m2]
1501.00
Cena
249 000 zł
Data wprowadzenia
2025-12-15
Data aktualizacji
2026-03-24
Informacje o nieruchomości
Przeznaczenie działki
rolna
Zagospodarowanie działki
Niezagospodarowana
Ukształtowanie działki
płaska
Kształt działki
nieregularny
Gaz
brak
Woda
w ulicy
Kanalizacja
w ulicy
Prąd
w ulicy
Dojazd
ASFALTOWA
Ilość pokoi
0
Wysokość pomieszczeń
0
Mapa
Oddział
Oddział
ESC sp. z o.o.
Adres
ul. Bydgoska 153, 64-920 Piła
Telefon
67 353-30-30
FAX
67 353-30-30
Strona WWW
www.esc.pila.pl
E-mail
















