ESC-MS-95429 | Mieszkanie Sprzedaż
Opis
Na sprzedaż nowe mieszkanie w stanie deweloperskim dużą loggią i z piwnicą. Ogrzewanie miejskie. Parking przed budynkiem. W pobliżu przystanki komunikacji miejskiej, przedszkole i szkoła podstawowa, markety, uczelnia wyższa, ośrodki zdrowia, ścieżki rowerowe i spacerowe, park miejski.
Informacje ogólne
Status
Aktualna
Lokalizacja
wielkopolskie, pilski, Piła, Górne
Rodzaj budynku
blok
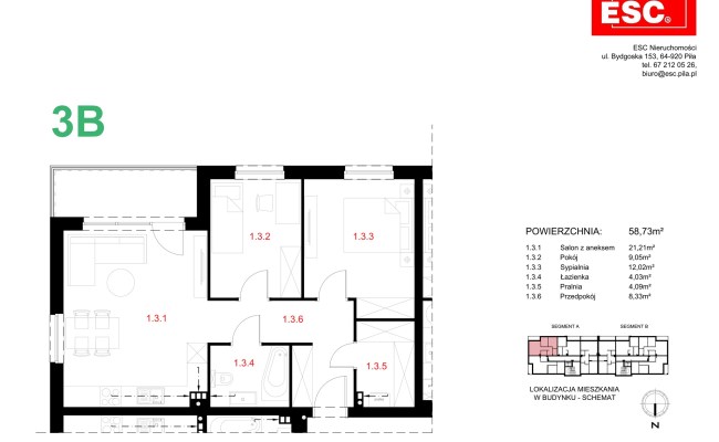
Pow. całkowita [m2]
58.73
Piętro
0p
Ilość pokoi
3
Cena
487 459 zł
Data wprowadzenia
2023-10-30
Data aktualizacji
2026-01-09
Informacje o nieruchomości
Ilość pięter w budynku
4
Stan lokalu
deweloperski
Okna
okna trzyszybowe
Balkon
jest
Garaż
0
Rok budowy
2025
Woda
ciepła - miejska
Ogrzewanie
miejskie
Winda
tak
Pomieszczenia
Ilość pokoi
3
Wysokość pomieszczeń
2,6000
Ilość łazienek
1
Powierzchnia
Aneks
Ilość
1
Oddział
Oddział
ESC sp. z o.o.
Adres
ul. Bydgoska 153, 64-920 Piła
Telefon
67 353-30-30
FAX
67 353-30-30
Strona WWW
www.esc.pila.pl
E-mail

