FRC-BS-198498 | Obiekt Sprzedaż
Opis
NA SPRZEDAŻ KAMIENICA W CENTRUM CHODZIEŻY
Przedmiotem oferty jest budynek mieszkalny o powierzchni użytkowej 273,06 m2 oraz budynek gospodarczy o pow. 68,60 m2.
Nieruchomość położona w centrum miasta na działce o powierzchni 482 m2.
Budynek w zabudowie wolnostojącej, dwukondygnacyjny, częściowo podpiwniczony.
Nieruchomość z bardzo dużym potencjałem inwestycyjnym, w którym można wydzielić 4 przestronne i funkcjonalne
lokale mieszkalne o pow. ok. 60 m2 każdy.
(opracowano projekt zmiany)
Nieruchomość pusta, wolna od lokatorów !!!
Obecnie na powierzchnię użytkową nieruchomości składają się:
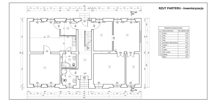
PARTER o pow. 134,10 m2 (rzut w galerii zdjęć)
- lokal mieszkalny o pow. 64,77 m2 - 3 pokoje, kuchnia, łazienka w korytarzu
- lokal mieszkalny o pow. 54,93 m2 - 2 pokoje, kuchnia, łazienka, wiatrołap
- komunikacja wraz z klatką schodową o pow. 14,40 m2
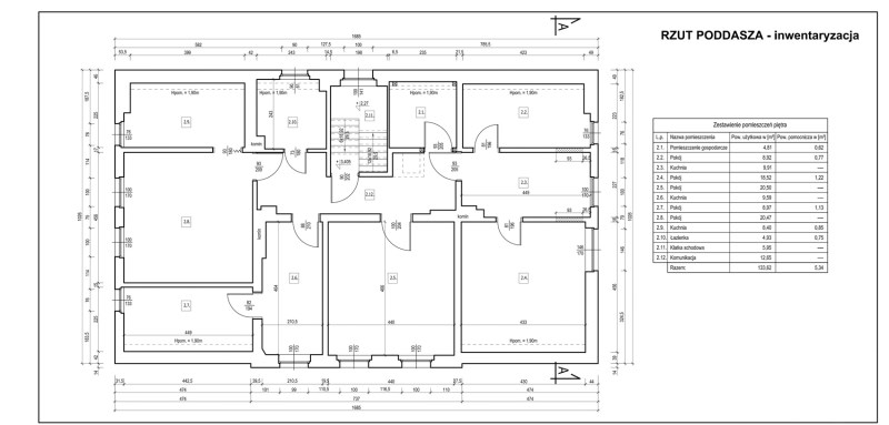
PIĘTRO o pow. 138,96 m2 (rzut w galerii zdjęć)
- powierzchnia mieszkalna (115,55 m2) składająca się z 5 pokoi, 3 kuchni, łazienki
- pomieszczenie gospodarcze o pow. 4,81 m2 z wejścia na strych
- komunikacja wraz z klatką schodową o pow. 18,60 m2
Piwnica podzielona na boksy przydzielone do lokali wraz z komunikacją. Łączna powierzchni wynosi 64,50 m2.
Budynek gospodarczy podzielony jest na część handlową z wejściem od strony ulicy oraz część gospodarczą.
Teren wokół budynków stanowi podwórze oraz przydomowy ogródek.
Działka przylega bezpośrednio do chodnika.
Ogrodzenie wykonane z elementów blaszanych i siatki stalowej od strony ogrodu.
Budynek posiada wszystkie niezbędne przyłącza do mediów, takie jak: woda, prąd, gaz i kanalizacja, ogrzewanie miejskie.
Nieruchomość zlokalizowana jest w centrum miasta.
Najbliższe otoczenie stanowią punkty handlowo - usługowe, restauracja, przychodnia, apteka, a w niedalekiej odległości Dworzec PKP i szpital.
CENA SPRZEDAŻY 449 000 ZŁ
Polecam i zapraszam do kontaktu !!!
Przedmiotem oferty jest budynek mieszkalny o powierzchni użytkowej 273,06 m2 oraz budynek gospodarczy o pow. 68,60 m2.
Nieruchomość położona w centrum miasta na działce o powierzchni 482 m2.
Budynek w zabudowie wolnostojącej, dwukondygnacyjny, częściowo podpiwniczony.
Nieruchomość z bardzo dużym potencjałem inwestycyjnym, w którym można wydzielić 4 przestronne i funkcjonalne
lokale mieszkalne o pow. ok. 60 m2 każdy.
(opracowano projekt zmiany)
Nieruchomość pusta, wolna od lokatorów !!!
Obecnie na powierzchnię użytkową nieruchomości składają się:
PARTER o pow. 134,10 m2 (rzut w galerii zdjęć)
- lokal mieszkalny o pow. 64,77 m2 - 3 pokoje, kuchnia, łazienka w korytarzu
- lokal mieszkalny o pow. 54,93 m2 - 2 pokoje, kuchnia, łazienka, wiatrołap
- komunikacja wraz z klatką schodową o pow. 14,40 m2
PIĘTRO o pow. 138,96 m2 (rzut w galerii zdjęć)
- powierzchnia mieszkalna (115,55 m2) składająca się z 5 pokoi, 3 kuchni, łazienki
- pomieszczenie gospodarcze o pow. 4,81 m2 z wejścia na strych
- komunikacja wraz z klatką schodową o pow. 18,60 m2
Piwnica podzielona na boksy przydzielone do lokali wraz z komunikacją. Łączna powierzchni wynosi 64,50 m2.
Budynek gospodarczy podzielony jest na część handlową z wejściem od strony ulicy oraz część gospodarczą.
Teren wokół budynków stanowi podwórze oraz przydomowy ogródek.
Działka przylega bezpośrednio do chodnika.
Ogrodzenie wykonane z elementów blaszanych i siatki stalowej od strony ogrodu.
Budynek posiada wszystkie niezbędne przyłącza do mediów, takie jak: woda, prąd, gaz i kanalizacja, ogrzewanie miejskie.
Nieruchomość zlokalizowana jest w centrum miasta.
Najbliższe otoczenie stanowią punkty handlowo - usługowe, restauracja, przychodnia, apteka, a w niedalekiej odległości Dworzec PKP i szpital.
CENA SPRZEDAŻY 449 000 ZŁ
Polecam i zapraszam do kontaktu !!!
Informacje ogólne
Status
Aktualna
Lokalizacja
wielkopolskie, chodzieski, Chodzież
Rodzaj budynku
Pow. całkowita [m2]
273.06
Cena
449 000 zł
Data wprowadzenia
2025-08-20
Data aktualizacji
2026-05-05
Informacje o nieruchomości
Opłaty wg liczników
gaz, prąd, woda, Wywóz śmieci, CO
Ilość pięter w budynku
2
Zagospodarowanie działki
Czesciowo
Ukształtowanie działki
płaska
Kształt działki
nieregularny
Okna
PCV
Instalacje
dobre
Balkon
brak
Pokrycie dachu
płyta falista
Podpiwniczenie
Tak
Rok budowy
1906
Gaz
tak - miejski
Woda
tak - miejska
Kanalizacja
miejska
Prąd
jest
Dojazd
asfalt
Ogrzewanie
miejskie
Odleglość od komunikacji [m]
100
Winda
nie
Ilość pokoi
0
Wysokość pomieszczeń
0
Mapa
Oddział
Oddział
ESC sp. z o.o.
Adres
ul. Bydgoska 153, 64-920 Piła
Telefon
67 353-30-30
FAX
67 353-30-30
Strona WWW
www.esc.pila.pl
E-mail




























